BACK TO WORKS

ID COURT RENOVATION

NIHONBASHI HAMACHO

ARCHTECT

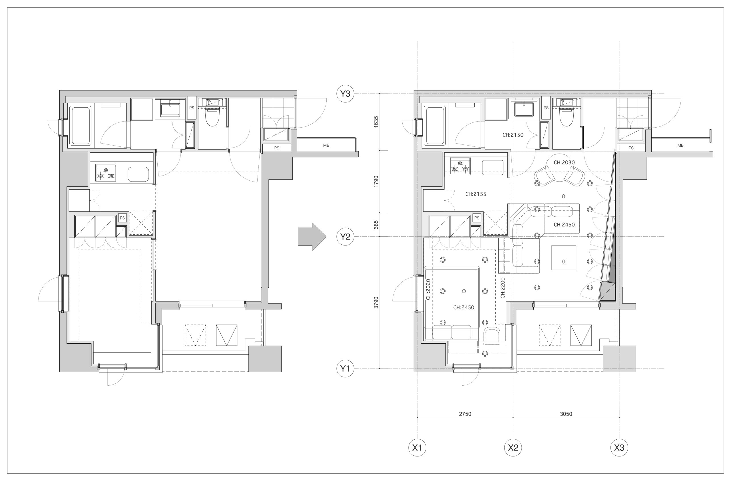
物件:ID COURT 日本橋浜町 301

設計デザイン:堀明元紀

竣工:2020.11

Address:東京都中央区日本橋浜町3-8-9

お問い合わせはこちら
お気軽にお問い合わせください

CONTACT